Ontdek deze prachtige nieuwbouwwoning op een toplocatie in Zellik, gelegen in een rustige, verkeersluwe straat.
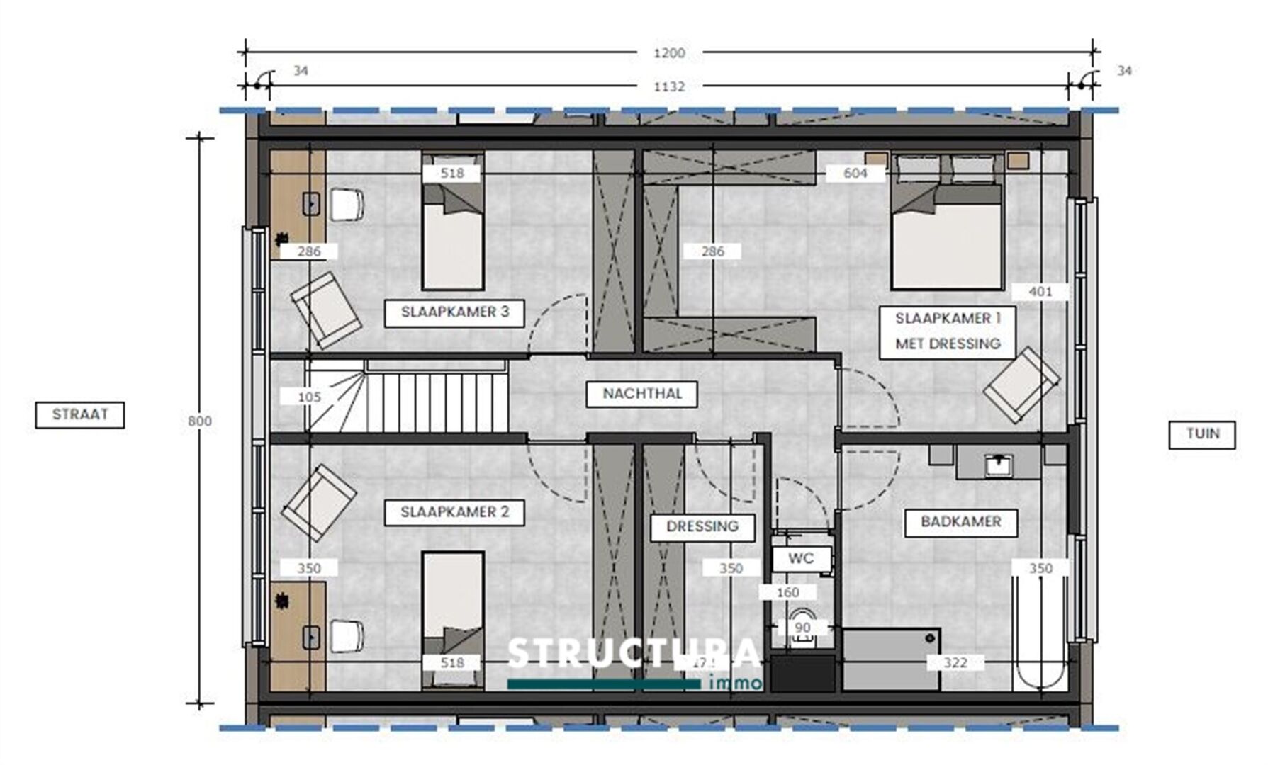
Deze woning wordt volledig afgewerkt op maat van de koper, zodat u uw droomhuis volledig naar eigen smaak kan realiseren. Op het gelijkvloers vindt u een inkomhal met gastentoilet, een lichtrijke en ruime woonkamer met open, ingerichte keuken van maar liefst 50 m², evenals een garage met praktische wasberging. De eerste verdieping omvat drie volwaardige slaapkamers, een aparte dressing en een ruime badkamer met extra apart toilet.
Verkoop onder 21% BTW op de constructie en registratierechten op de grondwaarde. Een unieke kans voor wie comfortabel en stijlvol wil wonen!
Deze woning wordt volledig afgewerkt op maat van de koper, zodat u uw droomhuis volledig naar eigen smaak kan realiseren. Op het gelijkvloers vindt u een inkomhal met gastentoilet, een lichtrijke en ruime woonkamer met open, ingerichte keuken van maar liefst 50 m², evenals een garage met praktische wasberging. De eerste verdieping omvat drie volwaardige slaapkamers, een aparte dressing en een ruime badkamer met extra apart toilet.
Verkoop onder 21% BTW op de constructie en registratierechten op de grondwaarde. Een unieke kans voor wie comfortabel en stijlvol wil wonen!
financieel
- Prijs
- € 477.650
- Beschikbaarheid
- Bij oplevering
- Verkoop onder BTW stelsel
- Ja
gebouw
- Bewoonbare oppervlakte
- 188 m²
- Type bebouwing
- Gesloten
- Verdieping(en)
- 2
- Gevelbreedte
- 8,00 m
terrein
- Perceel oppervlakte
- 202 m²
- Terreinbreedte
- 8 m
- Terreindiepte
- 25 m
- Tuin
- Ja
- Oriëntatie tuin
- Oost
- Oriëntatie terras
- Oost
energie
- Type ramen
- Aluminium
- Beglazing
- Dubbele beglazing
- Verwarming
- warmtepomp
- Type verwarming
- Individueel
garage
- Garage
- 1
- Buitenparking
- 1
indeling
- Slaapkamers
- 3
- Badkamers
- 1
- Toiletten
- 2
stedenbouwkundige informatie
- Bestemming
- Woongebied
- Bouwvergunning
- Nee
- Verkavelingsvergunning
- Ja
- Voorkooprecht
- Nee
- Vonnissen
- Nee
- As-builtattest
- Nee
- P-score
- A