Découvrez cette magnifique maison neuve idéalement située à Zellik, dans une rue calme et à faible circulation. Cette habitation sera entièrement personnalisée selon les souhaits de l’acquéreur, vous permettant de réaliser la maison de vos rêves selon vos goûts.
Au rez-de-chaussée, vous trouverez un hall d’entrée avec toilette invités, un spacieux et lumineux séjour avec cuisine ouverte entièrement équipée de pas moins de 50 m², ainsi qu’un garage avec buanderie pratique.
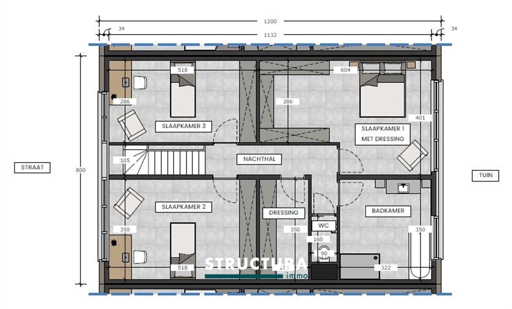
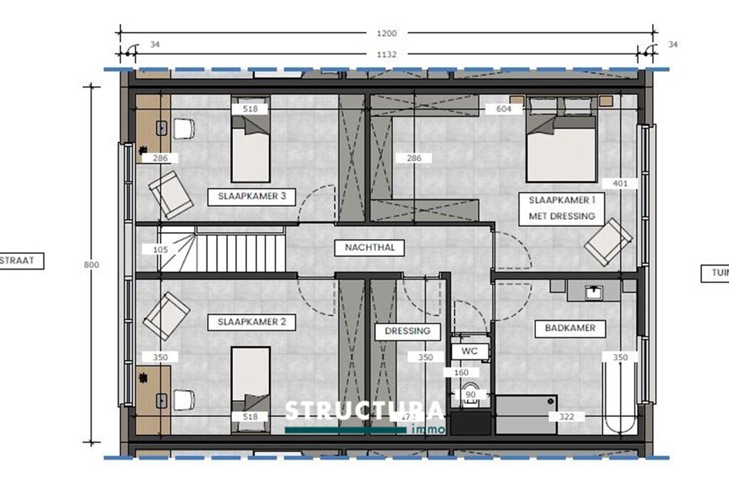
Le premier étage comprend trois chambres confortables, un dressing séparé et une grande salle de bains avec toilette indépendante.
Vente sous régime de 21 % de TVA sur la construction et droits d’enregistrement sur la valeur du terrain. Une opportunité unique pour vivre avec confort et élégance !
Au rez-de-chaussée, vous trouverez un hall d’entrée avec toilette invités, un spacieux et lumineux séjour avec cuisine ouverte entièrement équipée de pas moins de 50 m², ainsi qu’un garage avec buanderie pratique.
Le premier étage comprend trois chambres confortables, un dressing séparé et une grande salle de bains avec toilette indépendante.
Vente sous régime de 21 % de TVA sur la construction et droits d’enregistrement sur la valeur du terrain. Une opportunité unique pour vivre avec confort et élégance !
finances
- Prix
- € 477.650
- Disponibilité
- A la livraison
- Vente sous régime TVA
- Oui
bâtiment
- Surface habitable
- 188 m²
- Construction
- 2 façades
- Nombre d'étages
- 2
- Largeur de façade
- 8,00 m
terrain
- Superficie de la parcelle
- 202 m²
- Largeur du terrain
- 8 m
- Profondeur du terrain
- 25 m
- Jardin
- Oui
- Jardin d'orientation
- Est
- Orientation terrasse
- Est
énergie
- Type de fenêtres
- Aluminium
- Vitrage
- Double vitrage
- Chauffage
- Pompe à chaleur
- Type de chauffage
- Individuel
garage
- Garage
- 1
- Parking extérieur
- 1
aménagement
- Chambres
- 3
- Salles de bains
- 1
- Toilettes
- 2
information sur l'urbanisme
- Destination
- Zone d'habitat
- Permis de construire
- Non
- Permis de lotissement
- Oui
- Droit de préemption
- Non
- Verdicts
- Non
- Inventaire as built
- Non
- P-score
- A