TE KOOP: Bouwgrond mét te bouwen woning – Benedestraat, Humbeek (Grimbergen)
Op zoek naar een nieuwbouw op een rustige locatie waar comfort, licht en ruimte centraal staan?
Welkom in de Benedestraat, een aangename, verkeersluwe straat in het charmante Humbeek (Grimbergen).
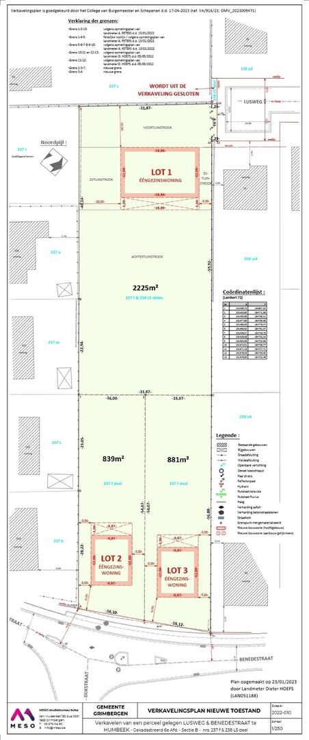
Deze bouwgrond (lot 2) met een terreinoppervlakte van 8a 39ca wordt verkocht in combinatie met een te bouwen open bebouwing met 3 slaapkamers.
De woning wordt gerealiseerd volgens de geldende bouwvoorschriften, met een westelijke oriëntatie die garant staat voor zon en lichtinval tot in de late avond.
De omgeving is ideaal voor wie rust zoekt zonder in te boeten aan bereikbaarheid.
Scholen, winkels, sportfaciliteiten en openbaar vervoer bevinden zich op korte afstand, waardoor deze locatie de perfecte balans biedt tussen landelijk wonen en praktische nabijheid.
Projectkenmerken
- Open bebouwing
- 3 slaapkamers
- Plat dak
- Westgerichte tuin
De vermelde prijs omvat de grond en de nieuw te bouwen woning samen, exclusief btw, registratierechten, ereloon architect, opmetings- en verkavelingskosten (geraamd op ± €3.500), ...
Een unieke kans
Dit project biedt u de mogelijkheid om een volwaardige nieuwbouwwoning te realiseren op een prachtige locatie in Humbeek.
Grijp deze unieke opportuniteit en bouw uw toekomst in Humbeek!
Op zoek naar een nieuwbouw op een rustige locatie waar comfort, licht en ruimte centraal staan?
Welkom in de Benedestraat, een aangename, verkeersluwe straat in het charmante Humbeek (Grimbergen).
Deze bouwgrond (lot 2) met een terreinoppervlakte van 8a 39ca wordt verkocht in combinatie met een te bouwen open bebouwing met 3 slaapkamers.
De woning wordt gerealiseerd volgens de geldende bouwvoorschriften, met een westelijke oriëntatie die garant staat voor zon en lichtinval tot in de late avond.
De omgeving is ideaal voor wie rust zoekt zonder in te boeten aan bereikbaarheid.
Scholen, winkels, sportfaciliteiten en openbaar vervoer bevinden zich op korte afstand, waardoor deze locatie de perfecte balans biedt tussen landelijk wonen en praktische nabijheid.
Projectkenmerken
- Open bebouwing
- 3 slaapkamers
- Plat dak
- Westgerichte tuin
De vermelde prijs omvat de grond en de nieuw te bouwen woning samen, exclusief btw, registratierechten, ereloon architect, opmetings- en verkavelingskosten (geraamd op ± €3.500), ...
Een unieke kans
Dit project biedt u de mogelijkheid om een volwaardige nieuwbouwwoning te realiseren op een prachtige locatie in Humbeek.
Grijp deze unieke opportuniteit en bouw uw toekomst in Humbeek!
financieel
- Prijs
- € 641.500
- Beschikbaarheid
- Vanaf akte
gebouw
- Bewoonbare oppervlakte
- 189 m²
- Verdieping(en)
- 2
- Gevelbreedte
- 9,00 m
terrein
- Perceel oppervlakte
- 839 m²
- Terreinbreedte
- 16 m
- Terreindiepte
- 54 m
- Tuin
- Ja
- Oriëntatie tuin
- West
garage
- Buitenparking
- 1
indeling
- Slaapkamers
- 3
- Badkamers
- 2
- Toiletten
- 2
downloads
stedenbouwkundige informatie
- Bestemming
- Woongebied
- Bouwvergunning
- Nog niet aangevraagd
- Verkavelingsvergunning
- Ja
- Voorkooprecht
- Ja
- Vonnissen
- Nee
- P-score
- B