Découvrez cette propriété unique au cœur d'Asse, parfaite pour les entrepreneurs à la recherche d'un environnement de travail polyvalent combiné à un revenu locatif passif, ou pour l'investisseur en quête d'un projet durable.
Cet emplacement offre de nombreuses possibilités pour diverses activités professionnelles, tout en permettant de vivre agréablement à proximité du centre.
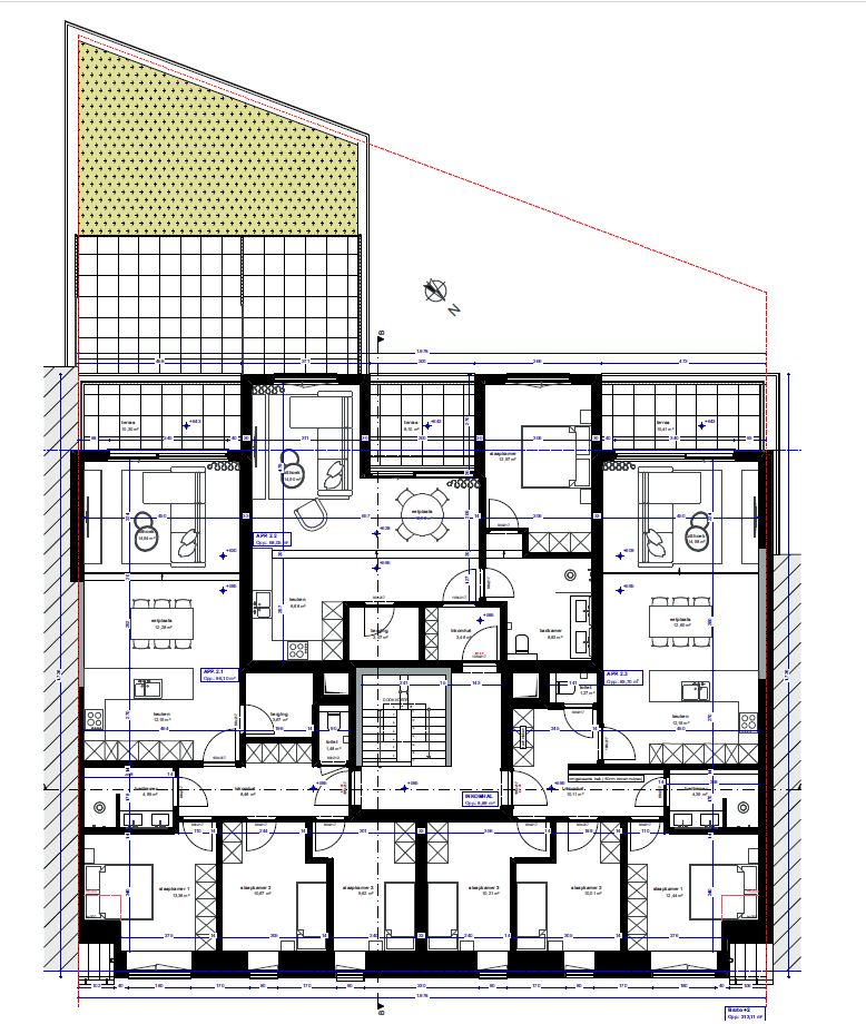
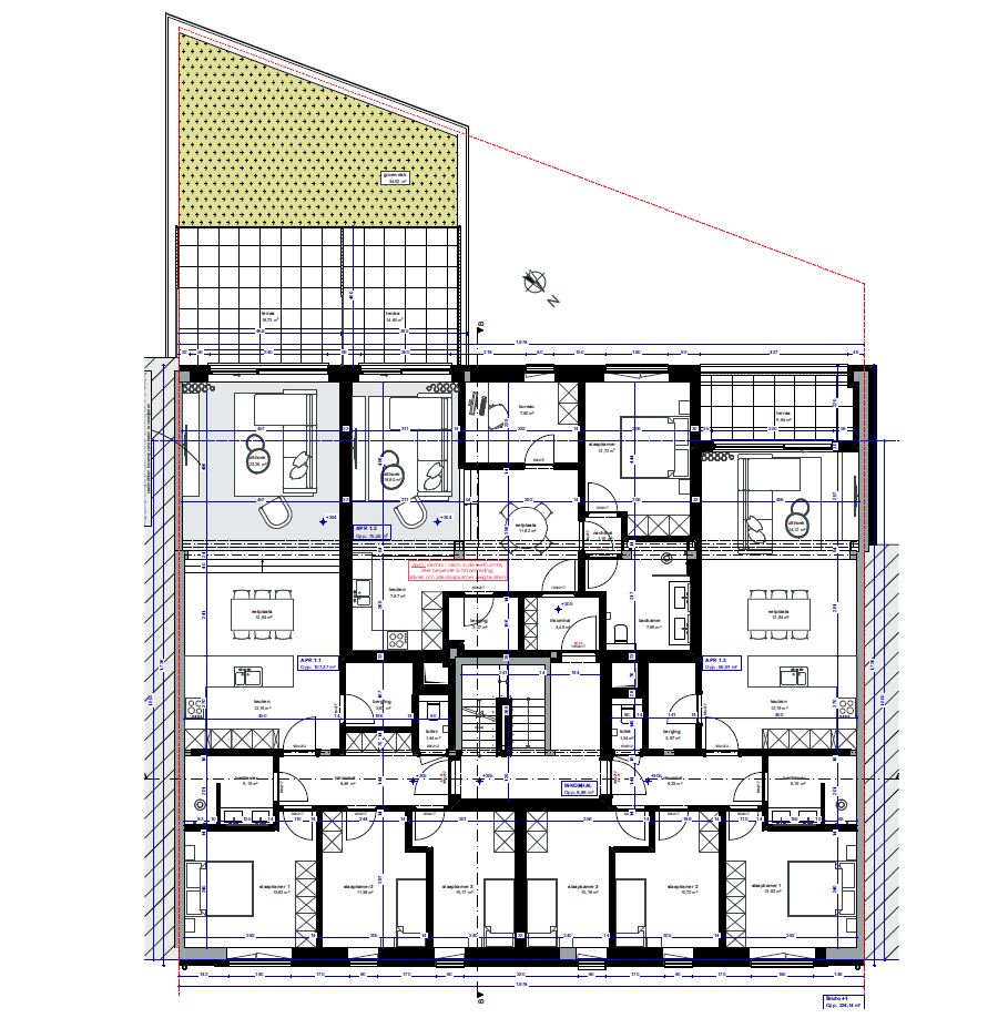
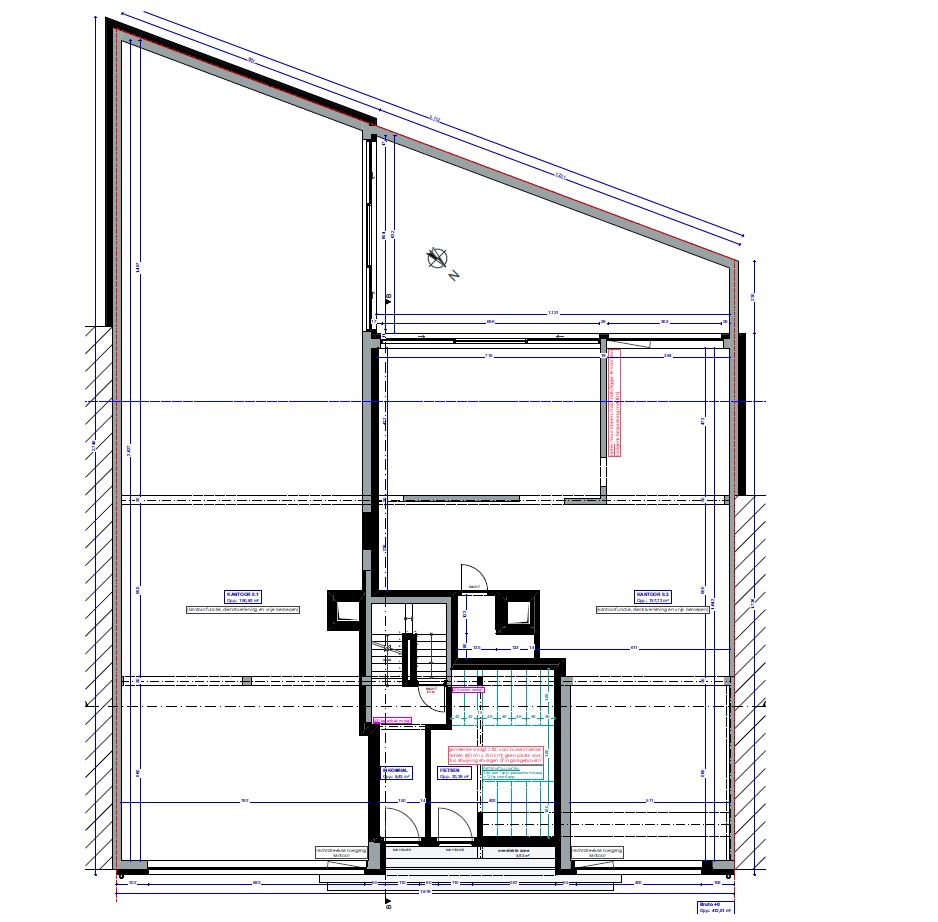
Le bâtiment bénéficie d'un permis conditionnel permettant la construction d’un immeuble composé de deux espaces commerciaux et de six appartements. L’architecture présente une façade moderne et épurée, parfaitement en phase avec les normes architecturales contemporaines. De grandes baies vitrées apportent une abondance de lumière naturelle, contribuant ainsi à un cadre de travail agréable et productif.
Situé le long de la très fréquentée Brusselsesteenweg, ce bien jouit d’une excellente visibilité et d’un accès aisé. De plus, un vaste parking public se trouve à environ 150 mètres à pied.
Grâce à son emplacement stratégique à proximité des principaux axes routiers et des commodités, ce projet est idéal pour les entreprises recherchant une localisation centrale ou pour les investisseurs en quête d’une opportunité durable.
Laissez-vous inspirer par le potentiel de cette propriété et contactez-nous pour plus d’informations.
Cet emplacement offre de nombreuses possibilités pour diverses activités professionnelles, tout en permettant de vivre agréablement à proximité du centre.
Le bâtiment bénéficie d'un permis conditionnel permettant la construction d’un immeuble composé de deux espaces commerciaux et de six appartements. L’architecture présente une façade moderne et épurée, parfaitement en phase avec les normes architecturales contemporaines. De grandes baies vitrées apportent une abondance de lumière naturelle, contribuant ainsi à un cadre de travail agréable et productif.
Situé le long de la très fréquentée Brusselsesteenweg, ce bien jouit d’une excellente visibilité et d’un accès aisé. De plus, un vaste parking public se trouve à environ 150 mètres à pied.
Grâce à son emplacement stratégique à proximité des principaux axes routiers et des commodités, ce projet est idéal pour les entreprises recherchant une localisation centrale ou pour les investisseurs en quête d’une opportunité durable.
Laissez-vous inspirer par le potentiel de cette propriété et contactez-nous pour plus d’informations.
finances
- Prix
- € 750.000
- Disponibilité
- A l'acte
- Revenu cadastral
- € 7.652
- Bien de rapport
- Oui
bâtiment
- Surface habitable
- 860 m²
- Construction
- 2 façades
- Année de construction
- 1974
- Nombre d'étages
- 2
- Largeur de façade
- 20,00 m
- Type de toit
- Toit de selle
Tuiles
Rénovation urgente
terrain
- Superficie de la parcelle
- 464 m²
- Largeur du terrain
- 20 m
- Profondeur du terrain
- 23 m
- Jardin
- 50 m²
- Jardin d'orientation
- Sud-ouest
- Orientation terrasse
- Sud-ouest
énergie
- Code unique PEB
- 20211228-002517583-KNR-1
- Date certificat PEB
- 28 décembre 2021
- Chauffage
- Chaudière au mazout
garage
- Garage
- 1
- Parking
- 3
téléchargements
information sur l'urbanisme
- Destination
- Zone d'habitat
- Permis de construire
- Oui
- Permis de lotissement
- Non
- Droit de préemption
- Non
- Verdicts
- Non
- Inventaire as built
- Non
- G-score
- A
- P-score
- A